Căn hộ Studio The NEST với 35 m2 được hình thành dành cho người trẻ độc thân. Trong bối cảnh người trẻ ngày càng tìm kiếm không gian phù hợp, đảm bảo các tiện ích xung quanh. Căn hộ Studio The NEST trở thành một tâm điểm đáng chú ý từ diện tích tối ưu đến thiết kế linh hoạt.
Khi “sống một mình” không còn là sự thỏa hiệp
Người trẻ hiện nay không còn ưu tiên lựa chọn không gian rộng lớn, bởi diện tích lớn thường đi kèm chi phí cao và nhiều khoảng trống không được khai thác hiệu quả. Thay vào đó, họ tìm kiếm không gian vừa đủ, tối ưu công năng và phù hợp với ngân sách cá nhân. Chính sự thay đổi trong tư duy này khiến sản phẩm trở thành lựa chọn đáng lý tưởng chú ý. Bên cạnh đó xu hướng sống tối giản đang dần phổ biến đề cao tính linh hoạt và trải nghiệm cá nhân.
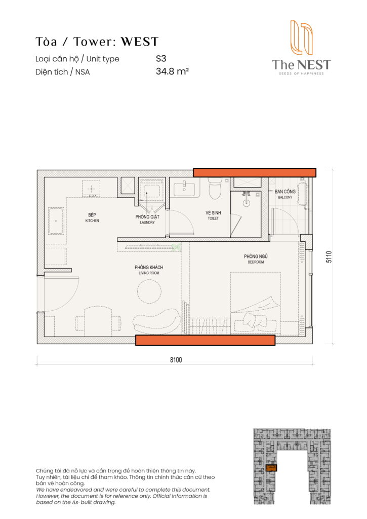
Tổng quan layout Studio The NEST
Căn hộ Studio tại MIDORI PARK The NEST được thiết kế với cấu trúc hợp lý vừa đủ dành riêng cho người trẻ độc thân. Không gian bao gồm không gian phòng khách kết hợp bếp, hay khu vực nghỉ ngơi, nhà vệ sinh và ban công. Điểm nổi bật nằm ở sự liền mạch giữa các khu vực chức năng. Người dùng dễ dàng chuyển đổi công năng theo nhu cầu cá nhân, đảm bảo tính linh hoạt trong từng trải nghiệm sống.

Khu vực đa năng
Không gian căn hộ được tổ chức theo hướng đa năng, nhằm tối ưu hiệu quả sử dụng trên từng mét vuông. Nhờ cách bố trí linh hoạt, gia chủ có thể vừa nghỉ ngơi, làm việc và thư giãn trong cùng một khu vực mà không bị chồng chéo công năng. Giúp căn hộ nhỏ vẫn đáp ứng trọn vẹn nhu cầu sinh hoạt hàng ngày một cách gọn gàng và hợp lý.
Khu vực bếp và bàn ăn
Với tiêu chí tối giản của người trẻ, gia chủ có thể tự thiết kế khu vực bếp với không gian được bố trí hợp lý giúp tối ưu không gian và mang đến cảm giác nấu nướng thoải mái và ngăn nắp.
Nhà vệ sinh
Thiết bị vệ sinh được bàn giao thiết bị cao cấp đến từ thương hiệu INAX với thiết kế hiện đại phù hợp cho người trẻ.

Studio The NEST phù hợp dành cho đối tượng nào?
Người trẻ độc thân
Thay vì lựa chọn diện tích lớn với chi phí cao, người trẻ độc thân thường ưu tiên những căn hộ có giá thành hợp lý nhưng vẫn đảm bảo đầy đủ trải nghiệm sống. Tại dự án, cư dân không chỉ sở hữu không gian ở được tối ưu, mà còn được thừa hưởng hệ tiện ích nội khu lên đến 79 tiện ích high-end The NEST. Nhờ đó, căn hộ không cần quá rộng nhưng vẫn đáp ứng trọn vẹn nhu cầu sống, từ sinh hoạt hàng ngày đến chăm sóc sức khỏe và thư giãn.
Nhà đầu tư
Căn hộ Studio Bình Dương trở thành lựa chọn đầu tư cho thuê hiệu quả khi hội tụ đồng thời ba yếu tố: diện tích vừa đủ, vị trí lõi TOD tại Đô thị Khoa học – Công Nghệ Bắc TP.HCM và nguồn nhu cầu thực tế. Bên cạnh đó với vị trí kết nối trực tiếp đến các khu công nghiệp lớn như: VSIP, Sóng Thần, Đồng An,… Nơi tập trung lượng lớn chuyên gia, kỹ sư và lao động chất lượng cao có nhu cầu lưu trú dài hạn.
Trải nghiệm sống tại The NEST – Không chỉ là căn hộ
Tại MIDORI PARK, một cộng đồng cư dân trẻ năng động đã được hình thành, không chỉ nhộn nhịp mà còn là cảm giác thư giãn. Khi 62% diện tích được dành cho các mảng xanh,
Không chỉ dừng lại ở nội khu, vị trí dự án còn đảm bảo khả năng kết nối nhanh chóng đến hệ tiện ích xung quanh như trường học, trung tâm thương mại và dãy shophouse sầm uất. Nhờ đó, mọi nhu cầu sinh hoạt, học tập và giải trí đều được đáp ứng trong bán kính đi bộ. Căn hộ Studio The NEST vì thế không chỉ là nơi để ở, mà là một không gian sống trọn vẹn. Nơi mọi nhu cầu từ sinh hoạt cơ bản đến trải nghiệm sống đều được đáp ứng trọn vẹn, khởi đầu hợp lý cho hành trình an cư và tích sản.